Appartement à Paris XVI
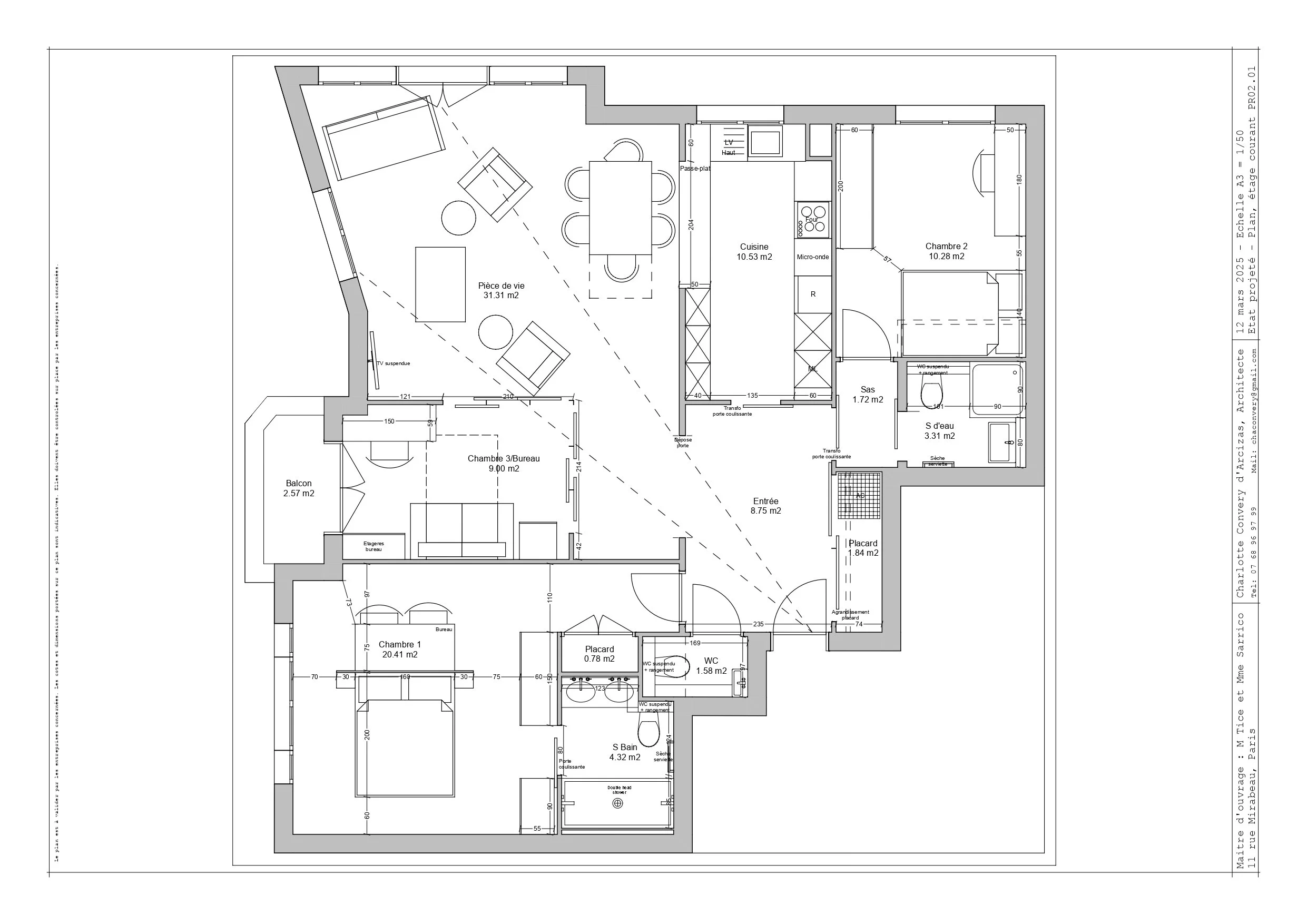
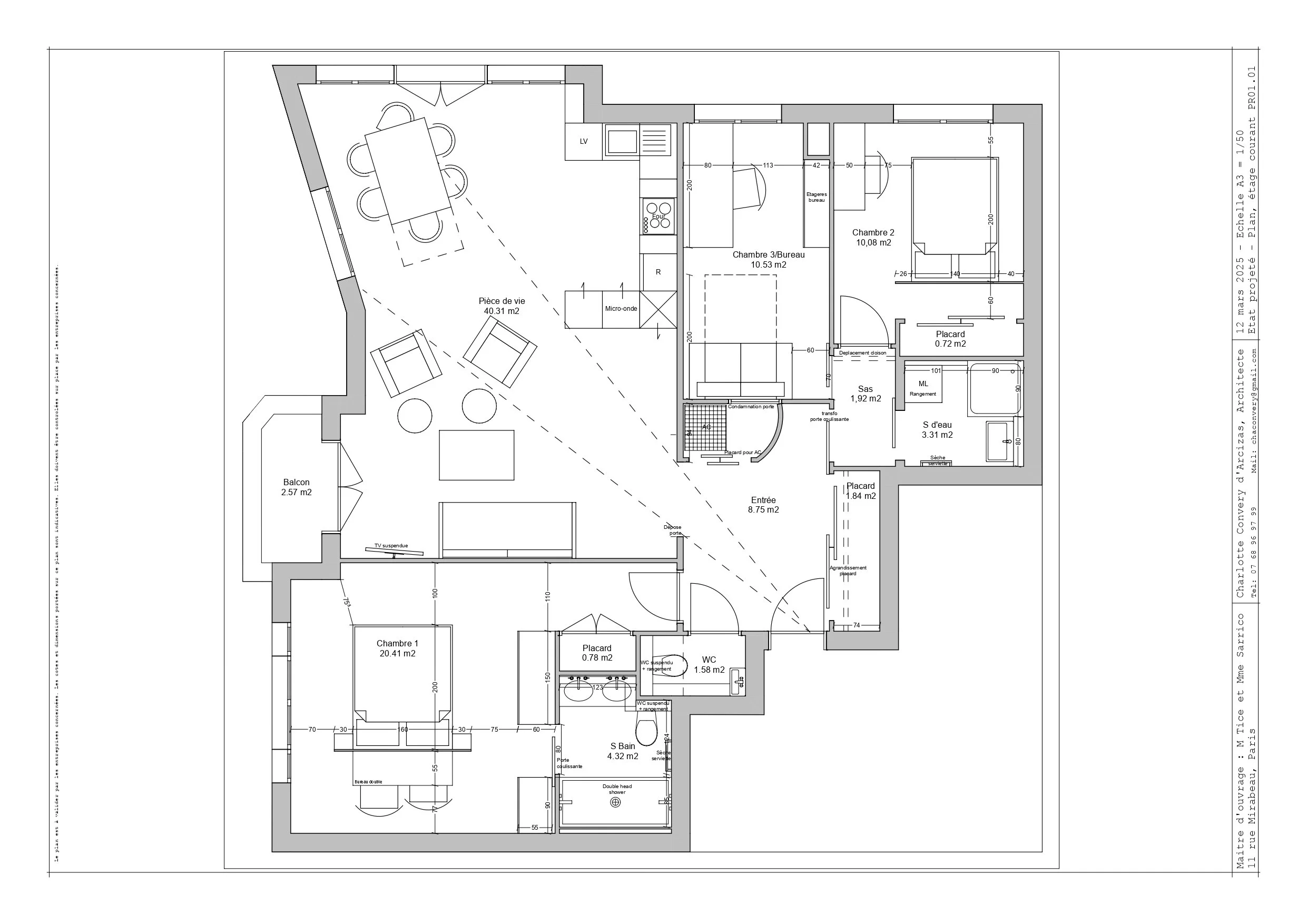
L’appartement était un 3 pièces (2 chambres + salon avec cuisine séparée) construit dans un ensemble des années 80 (structure béton). Les propriétaires souhaitaient le transformer en 3 chambres avec une cuisine ouverte dans le salon.
Ils souhaitaient également lui donner un cachet contemporain et chic. Le choix des matériaux, de meubles sur-mesure et de couleurs a été fait pour y répondre.
Après
Plans
Plan existant
Plan Projeté 01 - Version finale
Plan Projeté 02
3D Vue cuisine
3D Vue salon